Трансформатор сухого типа ТСЛ/4000/10/0.4/D/Yн-11/IP00/Al с литой изоляцией

27 апреля в 12:13
Описание
Характеристики трансформатора сухого типа: ТСЛ/4000/10/0.4/D/Yн-11/IP00/Al с литой изоляцией:

•Тип: ТСЛ (трехфазный, сухого типа с литой изоляцией)
•Концепция конструкции: Стержневой
•Номинальная мощность, кВа: 4000
•Номинальное напряжение на стороне ВН, кВ: 10
•Номинальное напряжение на стороне НН, кВ: 0.4
•Материал обмотки: Алюминий
•Напряжение короткого замыкания Uкз(%) ± 10%: 8
•Частота питающей сети, Гц: 50
•Степень защиты кожуха (корпус): IP00
•Класс нагревостойкости изоляции: F(155°C)
•Переключение без возбуждения (ПБВ), %: ±2х2,5
•Схема и группа соединения обмоток: D/Yн-11 (треугольник-звезда)
•Уровень шума дB(A): 70
•Охлаждение: Естественное С (AN/AF)
•Высота установки над уровнем моря, м: До 1000
•Потери холостого хода (120°C) ± 15%, Вт: 5500
•Потери короткого замыкания (120°C) ± 10%, Вт: 31100
•Ток lхх, % ±30%: 0,75
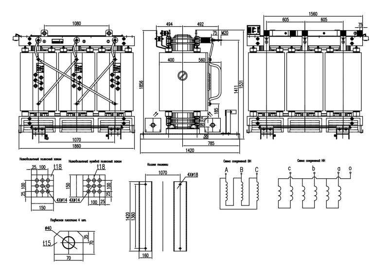
•Габариты трансформатора, мм: 1860*1420*1741
•Колея колес (или опор), мм: 1070*1360
•Вес трансформатора без кожуха ± 10%, кг: 6460
•Климатическое исполнение: УХЛЗ - неотапливаемые помещения с возможной конденсацией
•Тип вывода ВН НН: Шина
* - Точные размеры, а также подлежащие измерению фактические параметры и вес указываются в паспорте трансформатора.

Типовая комплектация трансформатора сухого типа 4000 кВА с литой изоляцией:

•Трансформатор
•Транспортные колёса - ролики
•Паспорт на трансформатор (с заключением ОТК)
•Сертификат сейсмостойкости (до 9 баллов)
•Сертификат соответствия ГОСТ Р12.1.004-91 «Система стандартов безопасности труда. Пожарная безопасность»
•Цифровой блок температурного контроля BWDK-S3206D с терморегулятором и датчиком температуры обмоток (3-4 шт) выполняющий роль шкафа тепловой защиты.
•Вентиляторы 6 шт.
•Комплект эксплуатационной документации на блок температурного контроля.
Гарантийные обязательства: 60 месяцев с момента передачи товара покупателю. Чертеж сухого трансформатора ТСЛ 4000 ква с литой изоляцией прилагается. Купить сухой трансформатор 4000 ква с литой изоляцией у производителя Востокэнерготранс.
Контактная информация

Профиль пользователя: Смотреть профиль

Все товары и услуги пользователя: Найти

Название предприятия: ООО Востокэнерготранс

Контактное лицо: менеджер

Город: Челябинск

Код города: Не указан

Телефон: 7-913-244-22-44

458
Закладки
Комментарии 0

Никто пока не комментировал эту страницу.

 
Написать комментарий
Можно не указывать
На этот адрес будет отправлен ответ. Адрес не будет показан на сайте
*Обязательное поле
Самое интересное в рубрике трансформаторное оборудование, (продажа)
Последние публикации
Сейчас читают
Последние комментарии